-
Agregaty
-
Klimakonwektory
-
Węże samochodowe
-
Narzędzia chłodnicze - zawory serwisowe
-
Łuskarki do lodu
-
Pompy ciepła
-
Pompy próżniowe
- koło i wsporniki
- rury i kształtki PE elektrooporowe
- siłowniki
- aluminium
-
Adaptery i złącza serwisowe
-
Złączki serwisowe
-
Butle do gazów chłodniczych
-
Chłodnice powietrza
-
Pompki skroplin
-
Klimatyzacja samochodowa
-
Wentylator
-
Izolacja
-
Materiały miedziane
-
Narzędzia
-
Ogólne
-
Chłodnicze
-
Elektryczne
-
Części zamienne
-
-
Zawory
-
Filtry
-
Książki i prasa
-
Pozostałe
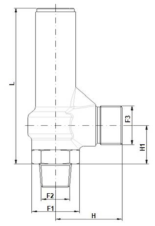
Zawór bezpieczeństwa D10/CS-1/2"G nastawa 23,0 bar
Skontaktuj się z nami
Cena brutto:
Cena netto: 140,16 zł
Opis:
NUOVA GENERAL INSTRUMENTSpole przelotu = 78,5 mm2 ; uszczelka PTFE (-196°C~ 250°C) ; 1/2" GAS x 3/4" GAS ISO 228 ; Kdr CE = 0,86 ; homologacja CE IV ; F1 = fi 25 mm , F2 = 1/2"GAS , F3 = 3/4"G , L = 80 mm , H = 32 mm , H1 = 21,5 mm ;
| D10/CS-1/2"GAS/23 | |
| Towar | |
| 23 (23%) | |
| szt. | |
| NUOVA GENERAL INSTRUMENTS | |
| zawory bezpieczeństwa | |
| 28.14.11.0 Zawory ciśnieniowe: redukcyjne, sterujące, zwrotne i zawory bezpieczeństwa | |
| 8,0 cm | |
| 2,5 cm | |
| 4,4 cm |